Grundrissfläche gesamt: 174 qm / Wohnfläche gesamt: 156 qm
| Wohnfläche EG |
|
| HWR Küche | 11,77 qm 16,83 qm |
| Wohnen&Essen | 30,84 qm |
| Gast | 14,69 qm |
| Flur | 6,96 qm |
| WC | 3,98 qm |
|
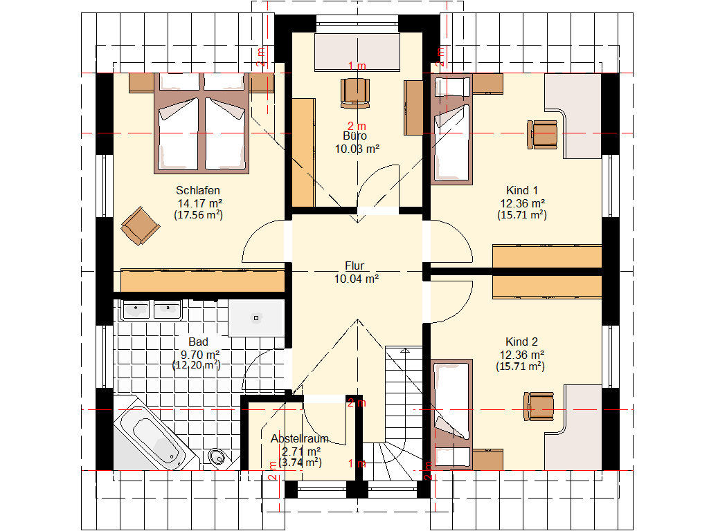
Wohnfläche OG |
|
| Bad | 9,70 qm |
| Schlafen | 14,17 qm |
| Büro | 10,03 qm |
| Kind 1 | 12,36 qm |
| Kind 2 | 12,36 qm |
| Flur Abstellraum
Gesamt: | 10,04 qm 2,71 qm
156 qm |