Auenland

Grundrissfläche gesamt: 133 qm / Wohnfläche gesamt: 119 qm

Grundrissfläche

 

Wohnfläche EG

 

 

HWR

WC

7,06qm

1,81qm

Essen&Wohnen

33,97qm

Küche

12,69qm
Flur 4,56qm

Windfang

3,76qm

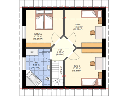
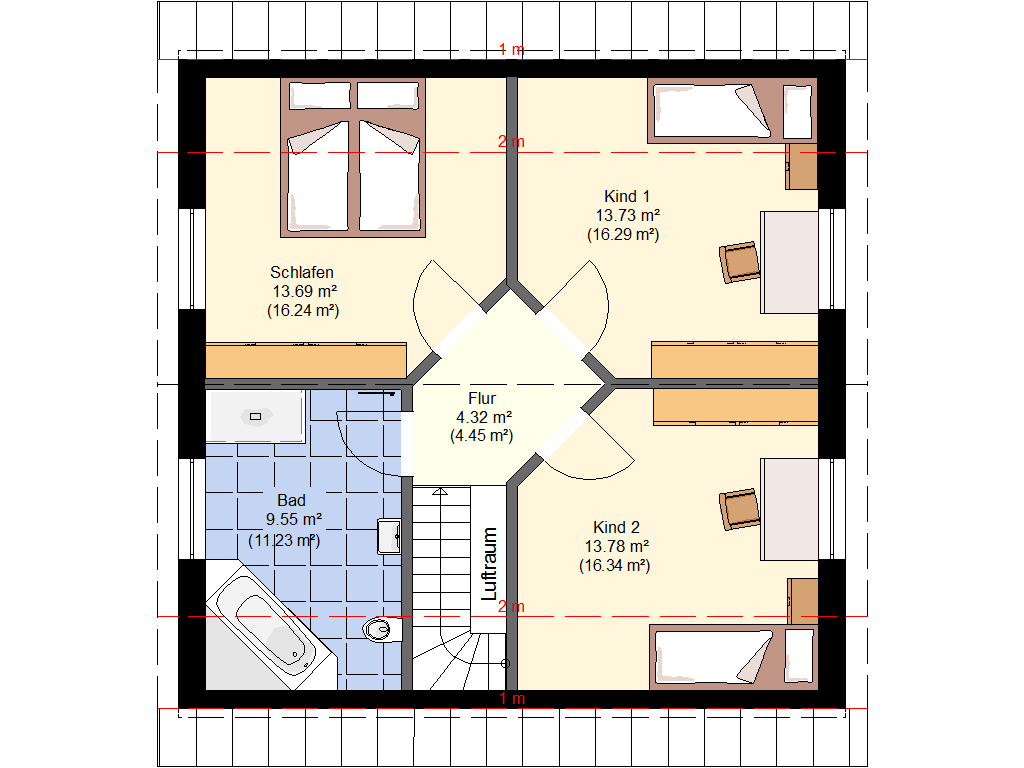
Wohnfläche OG

 

Bad

9,55qm

Schlafen 13,69qm
Flur 4,32qm
Kind 1 13,73qm

Kind 2

13,78qm

 

Gesamt:

 

133qm